奈良小学校(横浜市青葉区)中古マンション

13年連続受賞中!計18回センチュリオン受賞
TOPページ >
物件検索 >
不動産情報一覧

奈良小学校(横浜市青葉区)中古マンションの検索結果一覧

種別で絞り込む 新築一戸建て 中古一戸建て 中古マンション 土地
1件中1〜1件を表示
表示件数 並び順
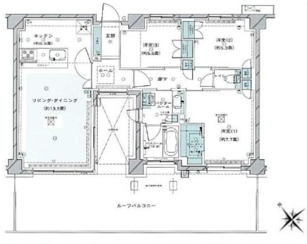
中古マンション 横浜市青葉区奈良町の中古マンション 外観・間取り

ルーフバルコニー付き築浅マンション! ■大切なペットと暮らせます(細則有) ■ミストサウナ付浴室乾燥機などの設備充実

価格 9,900万円 
所在地 神奈川県横浜市青葉区奈良町
交通 小田急小田原線 玉川学園前駅 徒歩13分
間取り 3LDK
専有面積 84.61u 所在階 6階/6階建
築年月 2025年5月 建物構造 マンション/RC造
10枚  
表示件数 並び順


お客様へ

中古マンション 不動産情報はセンチュリー21ヨコハマ地所にお任せください!センチュリー21ヨコハマ地所では不動産情報を豊富にご用意しております。 新築戸建て・土地・マンションをお探しの方はぜひセンチュリー21ヨコハマ地所までお問い合わせください。信頼あるスタッフがあなたのマイホーム探しのお手伝いをさせて頂きます。

  PAGE TOP