D´クラディア新横浜プラチナソリッド 1401号室【最上階・角部屋】|新横浜の賃貸物件情報 | 横浜市港北区・新横浜の不動産ならセンチュリー21ヨコハマ地所
 
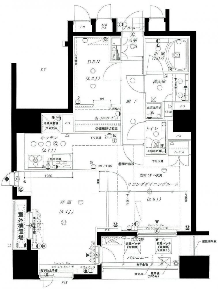
 D´クラディア新横浜プラチナソリッド 1401号室 1LDK+DEN
 
 
 リビング リビング
 キッチン キッチン
 トイレ トイレ
 浴室 浴室
 玄関 玄関
 クローゼット クローゼット
- 住所
- 横浜市港北区新横浜3-8-2MAPで確認
- 交通
- 東急新横浜線・地下鉄ブルーライン 新横浜 2分
 JR横浜線・地下鉄ブルーライン・東急新横浜線
物件概要
- 間取り
- 1LDK+DEN
- 専有面積
- 56.12㎡
- 築年月
- 2007年3月
- 主要採光面
- 南西
- 所在階 / 階数
- 14階
- 構造
- 鉄筋コンクリート造・地上14階建
- 損保
- 駐車場
- 近隣駐車場
- バイク置き場
- 契約期間
- 借家区分
- 普通借家
- 現況
- 入居可能日
- 取引態様
- 保証代行会社 
- 賃料
- 178,000円
- 管理費
- 10,000円
- 共益費
- 敷金
- 2ヶ月
- 礼金
- 2ヶ月
- 保証金
- 初期費用
- 鍵交換代
- 35,640円
- 仲介手数料
- 賃料の1.1か月
- 他初期費用 コンシェルジュ21(2年)16,500円・鍵交換費用35,640円
 ペット飼育相談:小型犬or猫1匹まで【敷金3か月+賃貸5,000円UP】
- 設備 2階以上,角部屋,室内洗濯機置場,洗面所独立,フローリング,エアコン付き,バス・トイレ別,温水洗浄便座,浴室乾燥機,追い焚き風呂,ガスコンロ対応,コンロ2口以上,システムキッチン,エレベーター,宅配ボックス,バルコニー付,オートロック,管理人有り,TVモニタ付きインタホン,防犯カメラ,ペット相談可,インターネット接続可,BSアンテナ,CSアンテナ,ケーブルテレビ,インターネット無料,シューズボックス,ウォークインクローゼット,保証人不要
- 備考 ペット飼育相談:小型犬or猫1匹まで【敷金3か月+賃貸5,000円UP】
© Yokohamajisho inc.


 
   
   
  




