| 価格 | 4,980万円 ![]() |
||||
|---|---|---|---|---|---|
| 所在地 | 神奈川県横浜市神奈川区菅田町
菅田町周辺の一戸建てを探す |
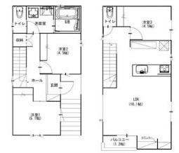
土地面積 | 69.5m² (21.02坪) | 建物面積 | 80.73u |
| 築年月 | 2026年2月築 | 間取り | 3LDK (-) | ||
| 交通 |
JR横浜線 鴨居 徒歩16分
|
||||
電話をかける(携帯・PHS可)
045-477-2330
「ホームページを見た」とお伝え下さい。
お問い合わせ番号をお伝えください
RHS-115101-42143
| 特徴 |
|
|---|---|
| コメント | 本物件(神奈川県横浜市神奈川区菅田町|4,980万円の新築一戸建て)の間取り・区画図や内観・外観の画像などの情報で、ご不明点がありましたらお気軽にお問合せ下さい。 ご連絡の際には「HPを見た」とお伝え頂くとスムーズです。 菅田町の新築戸建てをもっと見る 菅田町の中古戸建てをもっと見る |
| 採光面 | 南 | 構造/階数 | 木造/地上2階建 |
|---|---|---|---|
| 建ぺい率 | 60(%) | 容積率 | 200(%) |
| 駐車場 | 有 | 現況/引渡し | 建築中/相談 |
| 土地権利 | 所有権 | 私道負担面積 | - |
| 接道状況 | 接道: 南 公道 道路幅: 11.05m | 用途地域 |
第一種住居地域
|
| セットバック | - | 法令上の制限 | - |
| 地目 | 宅地 | 地勢 | |
| 建築確認番号 | 第2025SBC-確00932H号 | 都市計画 | 市街化区域 |
| 取引態様 | 仲介 | ||
| 情報更新日 | 2025年12月03日 | 次回更新日 | 2025年12月17日 |
| 小学校区 | 横浜市立東本郷小学校 (神奈川県横浜市緑区) 東本郷小学校学区域の一戸建て |
中学校区 | 東鴨居中学校 (神奈川県横浜市緑区) 東鴨居中学校学区域の一戸建て |
|---|
電話をかける(携帯・PHS可)
045-477-2330
「ホームページを見た」とお伝え下さい。
お問い合わせ番号をお伝えください
RHS-115101-42143
| 価格 | 万円 | ||
|---|---|---|---|
| 年利率 | % |
||
| ボーナス払い | 返済年数 | ||
| 頭金 | 直接入力する | 万円 | |

毎月のご返済額 |
ボーナス(×年2回) |
物件価格4,980万円 |
![]() |
![]() |
横浜市神奈川区菅田町
4680万円〜4980万円 |
電話をかける(携帯・PHS可)
045-477-2330
「ホームページを見た」とお伝え下さい。
お問い合わせ番号をお伝えください
RHS-115101-42143
勾配天井と18畳の解放感に溢れたLDK
食洗器付きシステムキッチン・カラーはブラックでスタイリッシュ